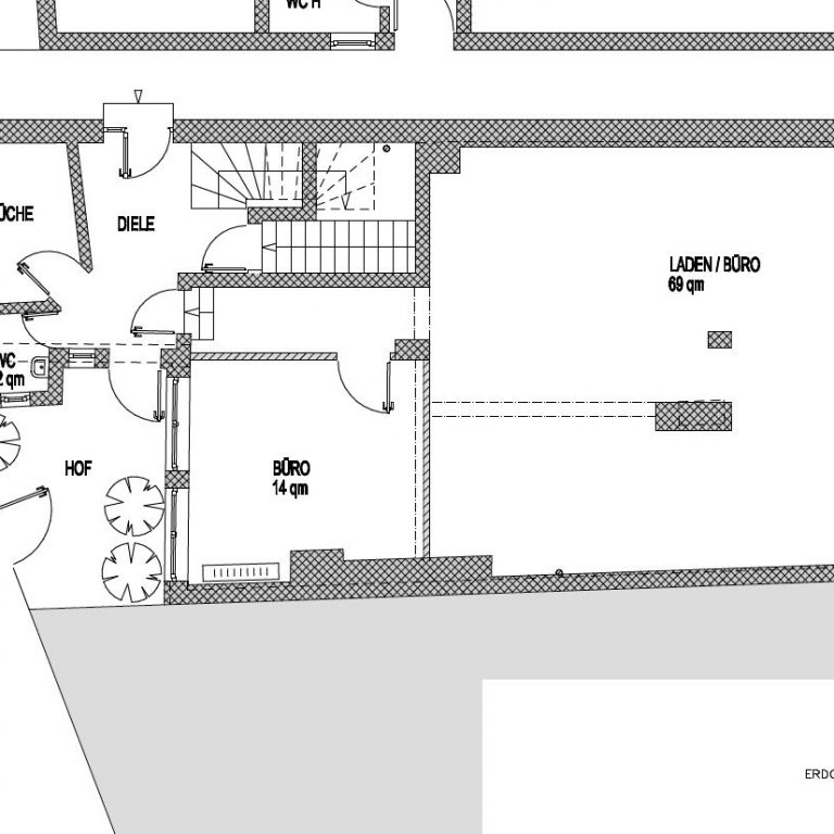
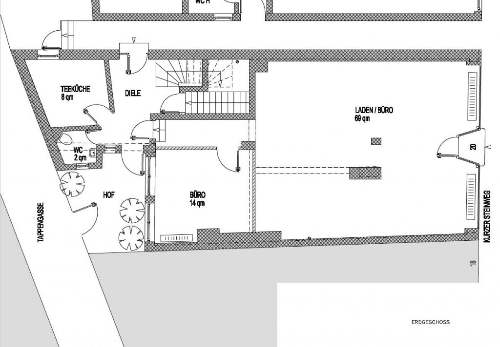
Geschäftsfläche in zentraler Lage ab sofort zu vermieten.
Mit ca. 93 qm verfügt diese Laden- oder Bürofläche über einen großen Geschäftsraum, ein separates Büro, eine Teeküche und ein WC.
Es steht zudem eine kleine Hoffläche zur Verfügung.
Die Geschäftsräume liegen im Erdgeschoss.
Kaltmiete 625 Euro
Nebenkosten 175 Euro
plus Strom.
Kaution 1.250 Euro